Kích thước thang máy kính là thông tin cực kỳ quan trọng mà người dùng cần tìm hiểu ở giai đoạn thiết kế và xây dựng ban đầu của công trình. Thông tin này mang tính quyết định đối với toàn bộ dự án. Tra cứu ngay thông số kích thước cụ thể theo từng công nghệ/tải trọng cùng bản vẽ đối trọng chi tiết để phục vụ cho việc thiết kế, xây dựng và dự toán chi phí chuẩn xác cùng NDE trong bài viết này nhé!
Kích thước thang máy kính tiêu chuẩn phổ biến hiện nay là bao nhiêu?
Đối với loại thang máy có vách bằng kính, kích thước có thể từ rất nhỏ (gia đình) đến rất lớn (công cộng). Xét về bối cảnh nhà ở, kích thước thang máy gia đình bằng kính có xu hướng tiết kiệm diện tích hơn và thường được nhắc đến nhiều nhất. Người ta phân loại chủ yếu dựa trên hai công nghệ chính, đầy đủ các tải trọng từ 250kg đến 500kg.

Kích thước thang máy kính tiêu chuẩn công nghệ cáp kéo/thủy lực
Đây là kích thước chuẩn mực, áp dụng cho hầu hết các dòng thang máy lồng kính sử dụng đối trọng hoặc piston thủy lực. Chúng cần kích thước hố thang rộng hơn, OH cao (tối thiểu 4200 mm trở lên) và hố PIT sâu hơn (phổ biến khoảng 1400 – 1600mm) để đảm bảo an toàn kỹ thuật. Dưới đây là bảng kích thước phổ quát nhất:
| Tải Trọng Danh Định | Tương đương Số người | Kích thước Hố thang Thông thủy (Rộng x Sâu) | Kích thước Cabin (Rộng x Sâu) |
| 250kg (Mini) | 3 người | 1300 mm x 1200 mm | 900 mm x 800 mm |
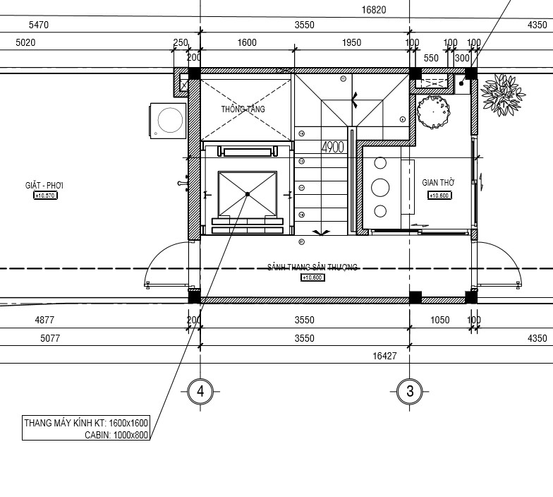
| 300kg (Mini) | 4 người | 1400mm x 1300 mm | 1000 mm x 800 mm |
| 350kg | 5 người | 1500 mm x 1500 mm | 1100 mm x 1000mm |
| 450kg – 500kg | 6-7 người | 1800 mm x 1500 mm | 1400 mm x 1000mm |
Kích thước thang máy kính tiêu chuẩn công nghệ trục vít/sàn nâng
Kích thước thang máy vách kính theo công nghệ này mang đến giải pháp tối ưu diện tích khi mà kích thước Cabin chiếm gần như toàn bộ diện tích hố thang. Đồng thời, yêu cầu Hố PIT chỉ 50mm và OH thấp (2300-2500mm). Dưới đây là bảng kích thước tiêu chuẩn phổ biến:
| Tải Trọng Danh Định | Tương đương Số người | Kích thước Phủ bì Hoàn thiện (W x D) | Kích thước Sàn Thang (Cabin) (W x D) |
| 250kg – 300kg | 3-4 người | 980mm x 872 mm | 600 mm x 830 mm |
| 350kg | 4-5 người | 1360 mm x 1172 mm | 1000 mm x 1000 mm |
| 400kg – 500kg | 5-7 người | 1460 mm x 1639 mm | 1100 mm x 1597 mm |
LƯU Ý: Kích thước thang máy lồng kính tiêu chuẩn trong 2 bảng trên chỉ mang tính chất tham khảo, dùng trong tư vấn thiết kế. Để có kích thước thang máy kính gia đình chuẩn 100%, khách hàng cần liên hệ tới NDE để được cung cấp bản vẽ chi tiết theo đúng loại thang máy được lựa chọn.

Kích thước cửa thang máy kính tiêu chuẩn
Kích thước cửa thang máy kính là một thông số quan trọng quyết định đến sự tiện lợi khi di chuyển đồ đạc (như tủ lạnh, ghế sofa) vào Cabin. Chiều cao cửa thang máy kính theo tiêu chuẩn phổ biến thường là 2100mm cho mọi tải trọng.
| Tải trọng Danh Định | Kích thước cửa thông thủy (rộng) | Kiểu cửa phổ biến |
| 250kg – 350kg | 700mm – 800mm | Cửa mở trung tâm (CO) hoặc cửa mở tay |
| 400kg – 500kg | 800mm – 900mm | Cửa mở trung tâm (CO) |
Lưu ý: Kích thước cửa tối đa cần được tính toán dựa trên Cabin và kiểu cửa. Kích thước cửa rộng 700mm đủ để cho 3-5 người di chuyển thoải mái.
Các phương án thiết kế kích thước hố thang kính
Việc xác định chính xác kích thước hố thang kính là bao nhiêu còn phụ thuộc vào việc bố trí linh kiện bên trong hố thang và loại cửa thang máy được sử dụng:
Kích thước hố thang kính theo kiểu đối trọng
Vị trí đối trọng áp dụng chủ yếu cho thang máy cáp kéo/thủy lực, giúp tối ưu hóa chiều rộng và chiều sâu của Cabin:
- Phương án đối trọng sau: Đối trọng đặt phía sau Cabin, giúp tối ưu hóa chiều rộng Cabin, phù hợp với hố thang rộng. Yêu cầu chiều sâu hố thang phải lớn hơn.
- Phương án đối trọng hông: Đối trọng đặt bên cạnh Cabin, phù hợp với hố thang hẹp (ví dụ: nhà ống), giúp giảm chiều sâu hố thang.
Kích thước hố thang kính cho thang máy kính khung thép
- Đối với thang cáp kéo/thủy lực: Kích thước khung thép tương đương kích thước hố thang thông thủy do khung thép được dựng trực tiếp trong hố bê tông.
- Đối với thang trục vít: Khung thép chính là hố thang. Việc bạn cần làm là chuẩn bị một khoảng không gian trống, tương đương kích thước Phủ bì Hoàn thiện để đặt thang vào.
Kích thước hố thang máy kính theo kiểu cửa
- Đối với thang máy kính Cửa mở Tự động (Auto Door – CO): Cần thêm không gian hai bên hố thang để cơ cấu vận hành cửa tự động. Điều này làm giảm tỷ lệ diện tích Cabin/Hố thang.
- Đối với Thang máy kính Cửa mở Bằng tay (Manual Door): Thường thấy ở thang trục vít. Cơ chế đơn giản giúp tối đa hóa diện tích Cabin vì không cần không gian cho cơ cấu ray cửa tự động.

Kích thước thang máy kính tiêu chuẩn theo chiều dọc
Đây cũng là thông số kích thước quan trọng không thể thiếu khi thi công, có liên quan trực tiếp đến kết cấu và an toàn của tòa nhà:
| Thông số | Thang cáp kéo/thủy lực tiêu chuẩn | Thang trục vít/sàn nâng tối ưu |
| Kích thước hố PIT | 1400 mm – 1600 mm | 50 mm – 100 mm |
| Yêu cầu tối thiểu theo từng tải trọng | Không được nhỏ hơn mức tối thiểu để lắp Buffet (giảm chấn) | Có thể lắp đặt ngay trên sàn, rất linh hoạt |
| Kích thước OH (Overhead – Chiều cao tầng trên cùng) | 4200 mm – 4500 mm | 2300 mm – 2500 mm |
| Yêu cầu tối thiểu theo từng tải trọng | Đảm bảo không gian an toàn cho người bảo trì đứng trên nóc Cabin | Rất thấp, phù hợp với các công trình bị giới hạn chiều cao trần |
Hướng dẫn tính toán kích thước Cabin thang máy kính chuẩn xác
Khi đã xác định được kích thước hố thang và phương án đối trọng, bạn có thể tính toán kích thước Cabin thang máy kính theo công thức chung:
Kích thước hố thang (W x D) = Kích thước Cabin (W x D) + Các khoảng không an toàn + Linh kiện
Đối với kiểu bố trí đối trọng sau:
- Chiều Rộng Cabin (W) = Chiều Rộng Hố thang (Wₕₜ) – Khoảng không an toàn 2 bên
- Chiều Sâu Cabin (D) = Chiều Sâu Hố thang (Dₕₜ) – Chiều sâu đối trọng
Trường hợp đối trọng hông:
- Chiều Rộng Cabin (W) = Chiều Rộng Hố thang (Wₕₜ) – Chiều rộng đối trọng
- Chiều Sâu Cabin (D) = Chiều Sâu Hố thang (Dₕₜ) – Khoảng không an toàn
Một số lưu ý kỹ thuật trong việc xây dựng hố thang kính
So với thang máy thường sử dụng khung thép, thì thang máy vách kính đòi hỏi độ chính xác cao hơn rất nhiều bởi vách kính sẽ “lộ” ra mọi sai sót. Để không gặp sự cố trong xây dựng, cả nhà thầu và thợ xây đều cần lưu ý:
- Sai số kích thước cho phép trong xây dựng hố thang cáp kéo/thủy lực (Hố Pit và Tường) ± 20 mm. Còn đối với thang trục vít, kích thước cần đạt độ chính xác tuyệt đối theo kích thước phù bì đã chọn.
- Bên cạnh đó, còn phải kiểm tra độ vuông góc đạt chuẩn 90 độ ở các góc tường, nhất là với thang máy kính khung thép. Kiểm tra độ thẳng đứng sao cho sai số độ nghiêng của tường không vượt quá 10km từ trên xuống dưới và đảm bảo độ sâu Hố Pit chính xác và chống thấm tuyệt đối trước khi lắp đặt thiết bị.
Trên đây là toàn bộ thông tin về kích thước thang máy kính mà bạn và gia đình cần nắm rõ để lựa chọn được sản phẩm phù hợp với căn nhà. Để biết thông tin chi tiết về kích thước thang máy kính gia đình cho công trình của nhà bạn, hãy nhanh tay liên hệ qua Hotline: 0768.111.555 hoặc để lại thông tin tư vấn qua Website: https://thangmaynde.vn/, đội ngũ tư vấn viên của NDE sẽ liên hệ với bạn trong thời gian ngắn nhất.

