Trong quá trình tính toán kích thước hố thang máy gia đình, các chuyên gia của NDE luôn nằm lòng một câu nói “sai một ly, đi vài trăm triệu”. Ý nghĩa của câu nói này không phải sự yêu cầu khắt khe về thẩm mỹ, mà là yêu cầu “sống còn” bắt buộc để đảm bảo an toàn, tối ưu chi phí và giải quyết các “nỗi đau” thực tế của chủ nhà khi bắt tay vào xây dựng. Để hiểu hơn, hãy đọc kỹ bài viết này của NDE.
3 Thành phần cốt lõi của hố thang máy gia đình quyết định diện tích xây dựng
Thay vì chỉ quan tâm đến mặt bằng sàn, bạn hãy nhìn nhận hố thang giống như một cấu trúc 3 chiều (chiều sâu, chiều cao và chiều rộng) và chú ý đến 3 thành phần cốt lõi quyết định trực tiếp tới tổng diện tích xây dựng:
- Hố PIT: Là phần giếng thang âm sàn, quyết định độ sâu móng, cũng là nơi lắp đặt cọc giảm chấn (buffer), đối trọng và các thiết bị giới hạn hành trình.
- Giếng thang: Là phần thân, khoảng không gian chứa cabin, hệ thống ray dẫn hướng, đối trọng và dây cáp. Quyết định diện tích mặt sàn.
- Chiều cao OH (Overhead): Chính là khoảng cách từ mặt sàn tầng trên cùng đến mặt sàn phòng máy (hoặc đỉnh hố thang). Quyết định độ cao đỉnh mái. Đồng thời là nơi lắp đặt máy kéo và tủ điện.

Bảng tra cứu kích thước hố thang máy tiêu chuẩn theo tải trọng
Nắm vững thông số kích thước hố thang máy gia đình chuẩn theo tải trọng mới nhất 2026 giúp gia chủ giải quyết triệt để câu hỏi “Tôi cần bỏ bao nhiêu m2 để lắp đặt hố thang?” Bảng tra cứu dưới đây được phân loại theo 3 nhóm nhu cầu phổ biến nhất:
Kích thước hố thang máy gia đình tiêu chuẩn tải trọng nhỏ 200kg – 250kg
Đây là dòng thang máy gia đình mini dành cho 1-3 người di chuyển cùng lúc, phù hợp cho nhà phố diện tích 40m2 – 50m2 hoặc nhà cải tạo:
- Diện tích hố thang “thông thủy”: Khoảng 1300mm x 1100mm hoặc 1400mm x 1300mm.
- Kích thước cabin: Khoảng 900mm x 600mm hoặc 1000mm x 800mm.
- Đặc điểm: Chỉ chiếm khoảng 1.5m2 – 2m2 diện tích mặt sàn.
- Thông số Pit/OH: Hố Pit thường rất nông (chỉ từ 500mm), chiều cao OH từ 2600mm.

Kích thước hố thang máy gia đình tiêu chuẩn “vàng” tải trọng 350kg – 450kg
Đây được coi là mức tải trọng lý tưởng nhất cho nhà mới có diện tích từ 60m2 trở lên:
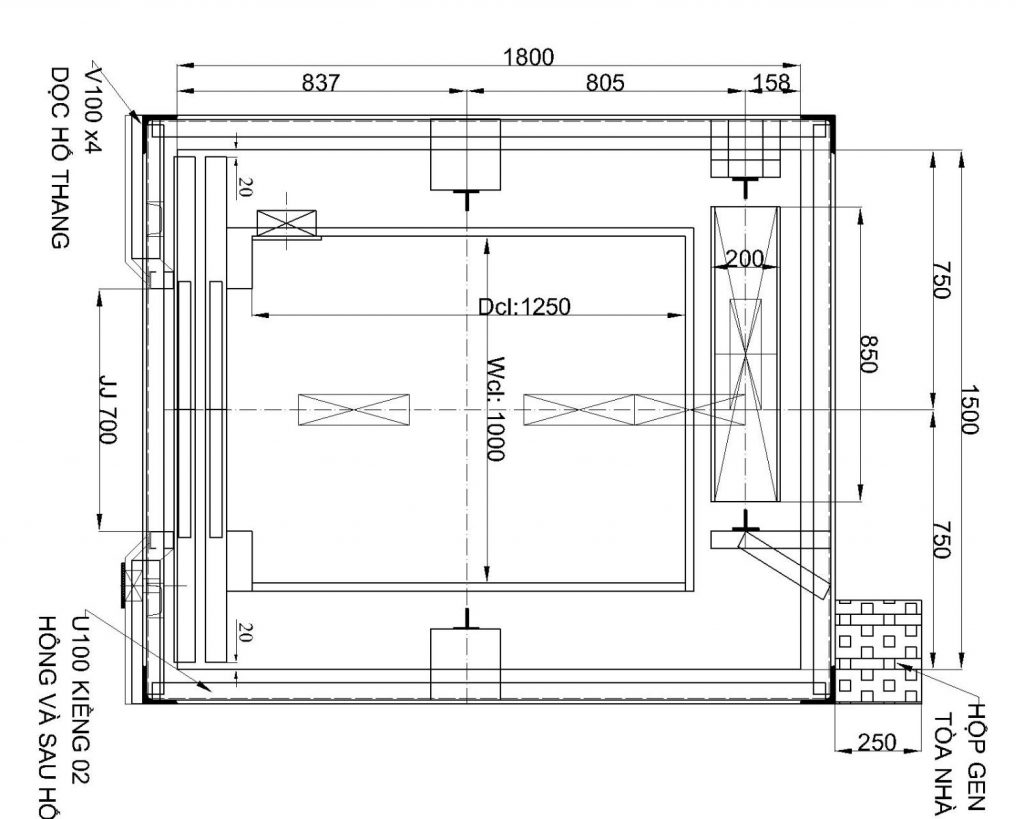
- Diện tích hố thang (Thông thủy): Dao động từ 1500mm x 1500mm đến 1800mm x 1500mm.
- Kích thước Cabin: Khoảng 1100mm x 1000mm đến 1400mm x 1100mm.
- Đặc điểm: Đủ cho 4 – 6 người di chuyển cùng lúc hoặc linh hoạt vận chuyển thêm đồ dùng cồng kềnh như xe nôi, tủ lạnh mini hoặc máy giặt.
- Đối trọng: Tùy chọn đặt đối trọng sau hoặc đối trọng hông sao cho phù hợp với hình dáng hố (hẹp ngang hoặc hẹp sâu).

Kích thước hố thang máy gia đình tiêu chuẩn tải trọng lớn 550kg – 630kg
Phù hợp cho các công trình biệt thự cao cấp, chung cư mini, tòa nhà văn phòng hoặc gia đình có nhu cầu sử dụng xe lăn thường xuyên.
- Diện tích hố thang (Thông thủy): Từ 1800mm x 1800mm đến 1900mm x 1900mm
- Kích thước Cabin: Chiều rộng từ 1400mm trở lên, chiều sâu từ 1100mm – 1300mm.
- Đặc điểm: Cabin rộng rãi, đủ cho 7-9 người/lượt hoặc người khuyết tật sử dụng xe lăn hoặc vận chuyển đồ nội thất lớn.
- Thông số Pit/OH: Yêu cầu hố Pit sâu hơn (từ 1000mm – 1400mm) và chiều cao OH từ 3800mm.

Bảng tra cứu thông số kích thước hố thang máy gia đình (tham khảo)
| Tải trọng | Số người | Kích thước hố (RxS) | Kích thước Cabin (RxS) | Chiều rộng cửa |
| 250kg | 2-3 người | 1400mm x 1300mm | 1000mm x 800mm | 650mm |
| 350kg | 4-5 người | 1500mm x 1500mm | 1100mm x 1000mm | 700mm |
| 450kg | 6-7 người | 1800mm x 1500mm | 1400mm x 1000mm | 800mm |
| 630kg | 8-9 người | 1800mm x 1800mm | 1400mm x 1200mm | 800mm |
Lưu ý: Các thông số trong bảng trên áp dụng cho các kích thước thông thủy (lọt lòng). Trong trường hợp bạn xây 200mm tường gạch bao quanh, hãy cộng thêm mỗi chiều 400mm để tính ra diện tích phủ bì thực tế trên bản vẽ kiến trúc.
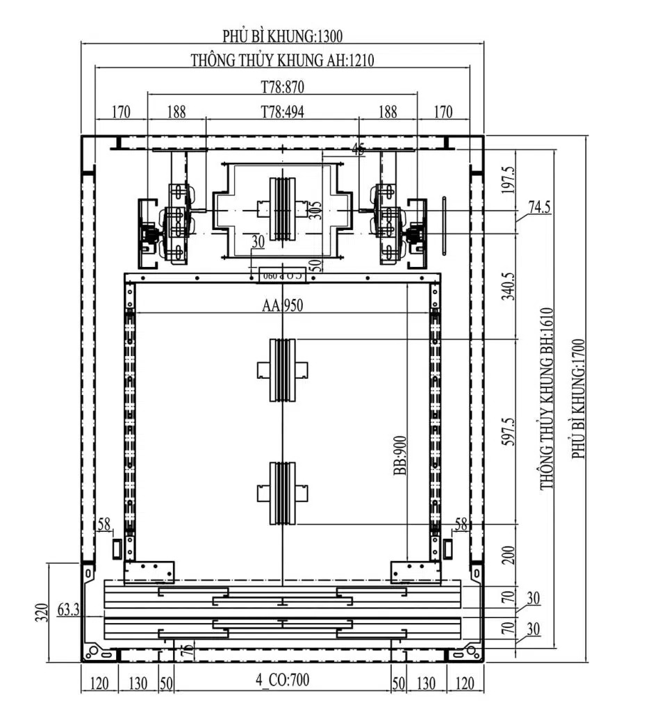
Phân biệt kích thước thông thủy với kích thước phủ bì
Đội ngũ kiến trúc sư NDE trong quá trình tư vấn nhận thấy rằng: hầu hết khách hàng đều đã biết hố thang máy là gì, duy chỉ có một điểm yếu là thường xuyên nhầm lẫn giữa 2 khái niệm thông thủy và phủ bì – nguyên nhân hàng đầu khiến thang máy không lắp đặt vừa hố đã xây. Bảng so sánh trực quan dưới đây sẽ giúp bạn dễ dàng hình dung 2 loại kích thước này:
| Tiêu chí | Kích thước Thông thủy (Lọt lòng) | Kích thước Phủ bì (Tổng diện tích) |
| Định nghĩa | Là khoảng trống thực tế bên trong lòng hố sau khi đã hoàn thiện (tô trát). | Là tổng diện tích hố thang chiếm chỗ trên mặt bằng sàn, tính từ mép tường ngoài. |
| Thành phần tính toán | Chỉ tính khoảng không gian để lắp thiết bị (Cabin, ray, đối trọng). | Kích thước thông thủy + Độ dày các bức tường bao quanh (hoặc khung thép). |
| Mục đích chính | Đảm bảo thang máy vận hành được, không bị cọ xát vào vách hố. | Giúp kiến trúc sư bố trí phòng ốc, cầu thang bộ và hành lang xung quanh. |
| Bên chịu trách nhiệm | Đơn vị cung cấp thang máy & Đội thợ xây thô. | Kiến trúc sư thiết kế bản vẽ tổng thể & Chủ đầu tư. |
| Sai số cho phép | Cực kỳ khắt khe. Sai lệch quá 20mm có thể không lắp được thang. | Linh hoạt hơn, tùy thuộc vào tổng diện tích sàn. |
| Hệ quả nếu sai lệch | Hẹp 1cm: Phải đục tường, cắt thép. Rộng 5cm: Xử lý dễ bằng bát sắt (Bracket). | Gây ảnh hưởng đến thẩm mỹ, làm hẹp hành lang hoặc lối đi chung. |

Ví dụ thực tế để bạn dễ hình dung:
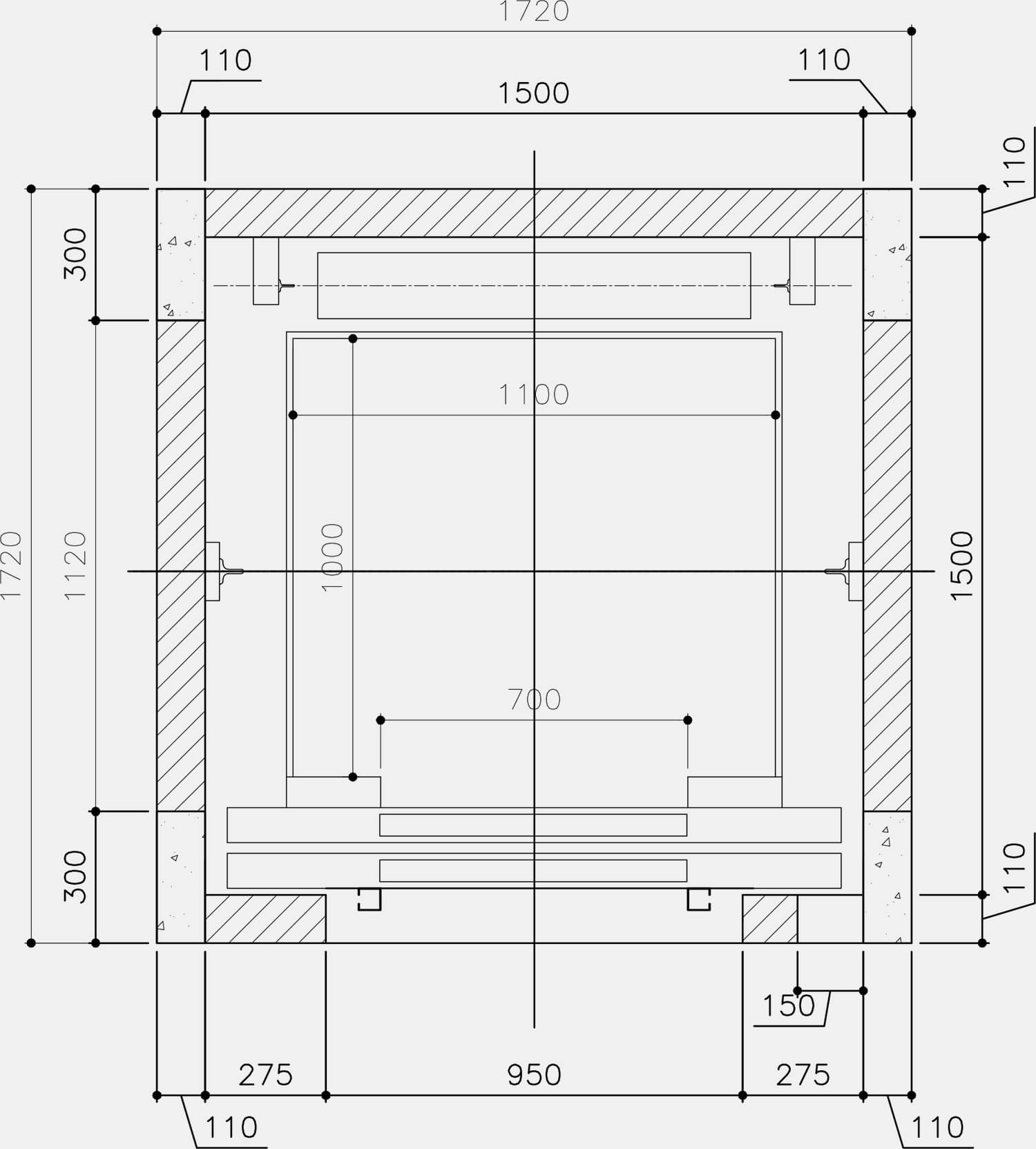
Giả sử bạn chọn tải trọng 350kg với yêu cầu thông thủy tiêu chuẩn là 1500mm x 1500mm.
- Trường hợp xây tường 110mm (Tường đơn):
-
-
- Kích thước phủ bì sẽ là: 1500 + (110 x 2) = 1720mm mỗi chiều.
-
- Trường hợp xây tường 220mm (Tường đôi – Chống ồn tốt hơn):
-
-
- Kích thước phủ bì sẽ là: 1500 + (220 x 2) = 1940mm mỗi chiều.
-
- Trường hợp dựng khung thép (Tiết kiệm diện tích nhất):
-
- Kích thước phủ bì thường chỉ khoảng: 1500 + (100 x 2) = 1700mm (Khung thép chỉ chiếm khoảng 100mm mỗi bên).
Vị trí đối trọng ảnh hưởng thế nào đến kích thước hố thang?
Vị trí đặt đối trọng (phần đối trọng với cabin) mang tính quyết định đến hình dáng cabin của thang máy. Nên chọn phương án nào còn tùy thuộc vào hình dạng khu đất (vuông, dài hay hẹp ngang) của công trình. Trong đó:
- Đối trọng sau (đối diện cửa): Kích thước hố thang máy thường yêu cầu chiều rộng lớn hơn chiều sâu, giúp cabin mở rộng theo chiều ngang, phù hợp với hố thang có hình dạng nông nhưng rộng. Đây là phương án phổ biến nhất, tận dụng khoảng không cạnh cầu thang bộ.
- Đối trọng hông (Bên trái hoặc bên phải Cabin): Kích thước hố yêu cầu chiều sâu lớn hơn chiều rộng, giúp cửa rộng hơn khoảng 100mm – 150mm so với đối trọng sau khi tính trên cùng 1 diện tích hố. Đặc biệt phù hợp với nhà ống có hố thang hẹp ngang nhưng chiều sâu thoải mái.
Tư vấn từ chuyên gia NDE: Nếu hố vuông (ví dụ: 1500m x 1500mm) ưu tiên đối trọng sau để cabin vuông vắn, còn nếu hố hẹp ngang (ví dụ: 1300mm x 1600mm) bắt buộc chọn đối trọng hông để ưu tiên chiều rộng cửa. Trong trường hợp diện tích quá hạn chế, hãy lựa chọn khung thép để tăng kích thước thông thủy bên trong.

Checklist 03 lỗi thi công hố thang gây tốn kém nhất
Khi xây dựng hố thang, có 3 vị trí “nhạy cảm” cần được giám sát chặt chẽ khi đổ bê tông. Bởi chỉ cần sai lệch vài cm cũng khiến bạn phải đục phá lại toàn bộ kết cấu:
- Chống thấm hố PIT: Đây là lỗi thường gặp nhất. Đáy hố PIT không được quá mỏng và phải xử lý chống thấm ngược ngay từ khi đổ bê tông đáy. Điều này giúp đảm bảo thiết bị không bị rỉ sét, hỏng hóc hoặc chập điện. Nhớ rằng, việc sửa chữa chống thấm còn tốn kém chi phí gấp 5 – 10 lần so với việc làm đúng ngay từ đầu.
- Hệ thống dầm đà lăng tô: Hệ thống dầm đà là xương xuống của hố thang. Như bạn đã biết, thang máy chạy trên một hệ thống ray dẫn hướng, ray này cần được bắt cố định vào dầm bê tông. Cứ cách khoảng 1500mm – 2000mm chiều cao hố, bắt buộc phải có hệ thống dầm đà 3 mặt để làm điểm tựa bắt ray dẫn hướng. Nếu chỉ xây tường gạch mà quên đổ dầm bê tông, ray sẽ bị rung lắc, thang chạy bất ổn và mất an toàn.
- Lỗ chừa kỹ thuật: Phải chừa lỗ cho bảng gọi tầng (thường ở độ cao 1100mm so với sàn) và các lỗ chờ để luồn cáp tại phòng máy. Tránh việc đục tường sau khi đã trát hoàn thiện.
Giải pháp hố thang máy gia đình cho từng loại công trình
- Đối với nhà cải tạo: Ưu tiên sử dụng thang máy không hố Pit (Pit nông) hoặc hố bằng khung thép. Khung thép giúp tiết kiệm đến 15-17cm mỗi chiều so với xây tường gạch 220mm.
- Đối với nhà xây mới: Hãy thiết kế hố thang dựa trên kích thước cabin mong muốn cộng thêm các khoảng hở kỹ thuật (khoảng 200mm mỗi chiều cho ray dẫn hướng và đối trọng).
- Chiều cao Overhead (OH): Với thang có phòng máy, OH thường là 3500mm. Tuy nhiên, nếu bị khống chế chiều cao tầng trên cùng, bạn nên chuyển sang dòng thang không phòng máy với OH tối thiểu chỉ từ 2600mm – 2800mm.

Quy trình tư vấn và thiết kế hố thang máy gia đình chuẩn chuyên gia NDE
Tại Thang Máy NDE, chúng tôi không chỉ tư vấn kích thước mà còn đồng hành cùng gia chủ qua 4 bước khép kín, đảm bảo mọi thứ đều hoàn hảo:
- Bước 1: Các kỹ sư của NDE đến tận công trình để đo đạc diện tích, đánh giá nền móng và hướng di chuyển tối ưu.
- Bước 2: Lên bản vẽ và cung cấp bản vẽ CAD hố thang chính xác đến từng milimet, phối hợp nhịp nhàng với kiến trúc sư của chủ nhà để đảm bảo tính thẩm mỹ tổng thể.
- Bước 3: Các kỹ sư NDE trực tiếp giám sát thi công phần thô và các giai đoạn quan trọng như đổ hố Pit, làm dầm đà và đổ sàn phòng máy..
- Bước 4: Sau khi hố thang đã hoàn thiện, NDE tiến hành đo đạc lại bằng máy laser để đảm bảo độ thẳng đứng tuyệt đối trước khi tiến hành lắp đặt thiết bị.
Với những thông tin về kích thước hố thang máy gia đình được đề cập trong bài viết, hy vọng các gia chủ đã có cái nhìn tổng quan và nắm bắt mọi thông tin cần thiết. Nếu có nhu cầu lắp đặt thang máy gia đình tại Hà Nội, hãy liên hệ ngay Hotline: 0768.111.555 của NDE để được hỗ trợ nhanh chóng.

